聯系名杰裝飾
全國服務熱線: 020-86338183
傳真:020-86343481
QQ:2238665685
郵箱:gzmaje@163.com
地址:廣州市天河區元崗街天河慧通廣場A區1423-1428室
工程名稱:
廣東中奧汽車銷售服務有限公司--奧迪4S店
工程面積:1000㎡
工程地址:廣州-創佳路
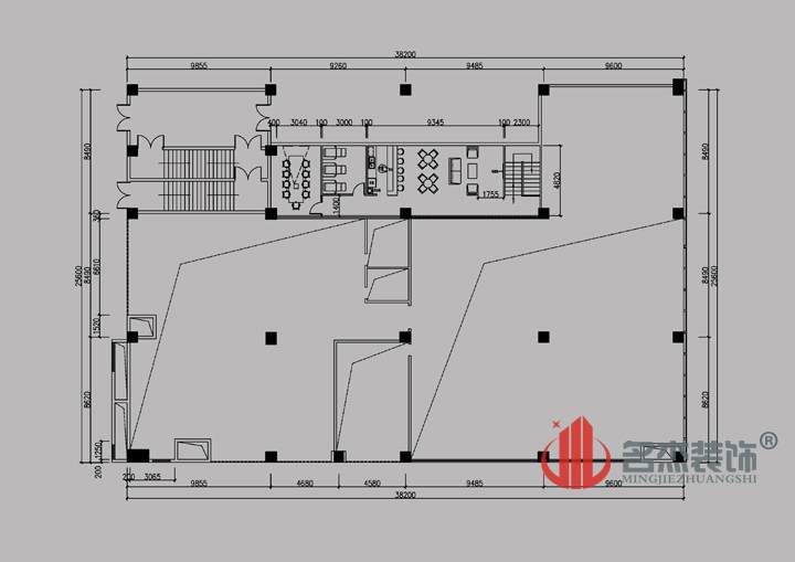
設計說明:設計師通過前期對4S店的實地調研,了解到了4S店空間所需的功能分區、空間流線、形態特征、常用材質等。通過與工作人員及客戶的交流,從不同視角理解了此類空間除了功能需求以外的心理需求。該裝修設計方案從奧迪品牌標志形態和汽車本身的形態出發,打造了與之相契合的流線型空間。為了突出展車,展廳以白色為主色調,用灰色來豐富空間,用亮色來點綴空間。該空間除了主要的展示空間,還設置了一些滿足客戶體驗需求的交互空間、滿足客戶休閑需求的休息空間。為了豐富空間層次和滿足人們最佳觀賞視角的需求,在二層還設計了廊道連同空間。除了對展廳空間進行設計,該方案還對空間進行了延伸,設計了交車房和修車及保養車輛的區域,使得不同空間組塊形成有機的統一體。
案例展示

門頭裝修設計

外觀裝修設計

大廳裝修設計

大廳裝修設計角度二

店長室裝修設計

會議室裝修設計

洽談室裝修設計

休息室裝修設計

靜休室裝修設計

平面圖裝修設計

平面圖裝修設計



